今天小編為大家介紹的是——污泥處置系統及處置工藝
干化污泥并資源再利用的方法。所述污泥處置系統包括:污泥進料裝置,污泥干燥裝置,污泥炭化制炭裝置,污泥燃燒裝置以及尾氣處理裝置。本發明提供了一套完善的污泥處理裝置,不僅使得比較終的排放無污染,而且還充分利用了其中的熱量,因此是一種經濟且無污染的污泥處置系統。

1.一種污泥處置系統,其特征在于,所述污泥處置系統包括:污泥進料裝置,污泥干燥裝置,污泥炭化制炭裝置,污泥燃燒裝置以及尾氣處理裝置。
2.根據權利要求1所述的污泥處置系統,其特征在于,所述污泥進料裝置包括:至少一地埋式料倉,至少一無軸螺旋輸送機;所述地埋式料倉為設有料倉閥門的斗式料倉,并且至少部分所述斗式料倉埋設于地下;所述地埋式料倉的下部開口設有料倉閥門,下部開口處對應設置一無軸螺旋輸送機。
3.根據權利要求1所述的污泥處置系統,其特征在于,所述污泥干燥裝置為槳葉式攪拌機;所述槳葉式攪拌機為雙槳葉空心攪拌機,所述攪拌機兩端設有導熱軟管,導熱軟管分別與干燥機殼體夾套和槳葉軸內腔相互連通;所述槳葉式攪拌機設有污泥熱解區和污泥干燥區;所述污泥干燥裝置的上部還設有熱尾氣的入口和出口。
4.根據權利要求1所述的污泥處置系統,其特征在于,污泥炭化裝置為雙槳葉空心攪拌機,所述槳葉式攪拌機設有驅動電機,齒輪減速機構,兩根軸分別為主動葉片軸和從動葉片軸,所述軸設有空心內腔;所述驅動電機通過齒輪減速機構驅動兩根軸,兩根軸上各自設有若干槳葉,所述槳葉式攪拌機外殼設有導熱油入口和導熱油出口的,其中所述外殼殼體為空心的夾套;所述污泥炭化裝置的上部還設有熱尾氣的入口和出口。
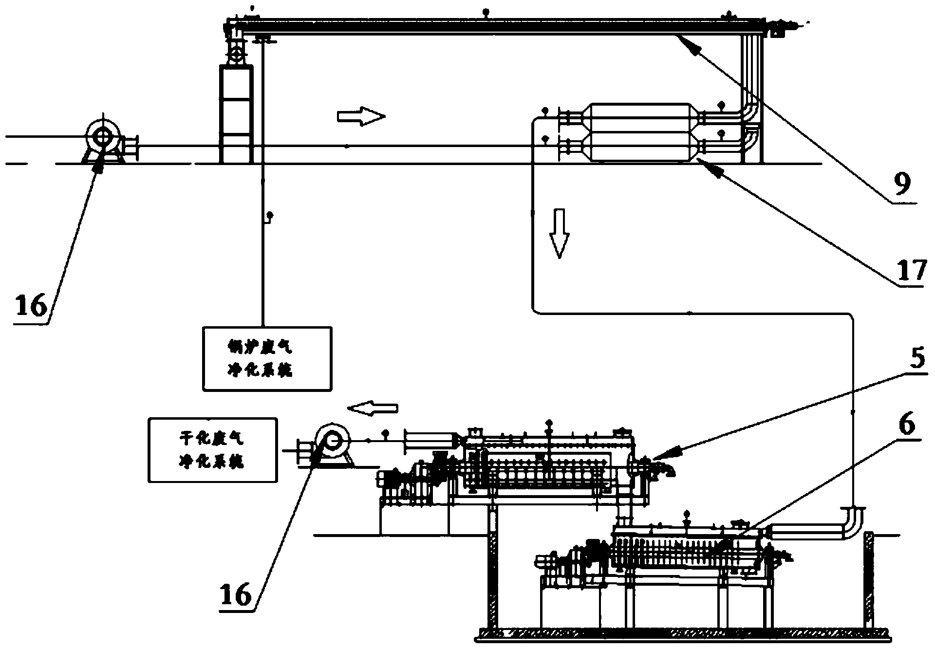
5.根據權利要求1所述的污泥處置系統,其特征在于,所述燃燒裝置為鍋爐,所述鍋爐設有一炭化污泥的上料口和一煤炭的上料口;所述鍋爐燃燒室內設有一上輸送鏈,一下輸送鏈,所述上輸送鏈位于所述下輸送鏈上方;所述上輸送鏈的一端設置所述煤炭的上料口,另一端設置爐渣出口;所述下輸送鏈的一端設置所述炭化污泥的上料口,另一端設置爐渣出口;所述上輸送鏈和下輸送鏈的傳送速度可以單獨調節。
6.根據權利要求1所述的污泥處置系統,其特征在于,所述尾氣處理裝置包括熱量回收裝置,一尾氣凈化裝置;所述熱量回收裝置包括一氣體換熱裝置,換熱裝置設有鍋爐廢氣入口、鍋爐廢氣出口,空氣入口,空氣出口;高溫鍋爐廢氣進入氣體換熱裝置后將熱量傳遞給進入氣體換熱裝置的常溫空氣,降溫后的鍋爐廢氣繼續進入炭化污泥的烘干裝置,然后進入鍋爐廢氣凈化系統;升溫后的空氣先后進入污泥炭化裝置、污泥干燥裝置然后成為干化廢氣,比較后進入干化廢氣凈化系統。
7.根據權利要求1所述的污泥處置系統,其特征在于,所述污泥進料裝置,污泥干燥裝置,污泥燃燒裝置以及尾氣處理裝置都設置在一負壓廠房中,廠房設有一雙層自動門。
8.一種污泥處置工藝,其特征在于,包括以下步驟:
(1)卸料與上料步驟:將污泥卸載在地埋式料倉中,打開料倉閥門,使污泥落入與地埋式料倉相配合的無軸螺旋輸送機中;無軸螺旋輸送機將污泥輸送至污泥干燥裝置中;
(2)污泥干燥步驟:控制雙槳葉空心攪拌機中的加熱介質的流速、流量與溫度,將雙槳葉空心攪拌機加熱到100~240℃,控制雙槳葉空心攪拌機的攪拌推進速度,使污泥在雙槳葉空心攪拌機中依次經歷熱解過程與干燥過程,干燥至進入攪拌機的初始體積的30%到40%時即可進入污泥炭化制炭裝置;
(3)污泥炭化制炭步驟:控制雙槳葉空心攪拌機中的夾層中加熱介質的流速、流量與溫度,同時控制進入雙槳葉空心攪拌機中的尾氣流量,調整雙槳葉空心攪拌機中的溫度在220~260℃,調整雙槳葉空心攪拌機中的攪拌推進裝置的轉速,保證污泥的停留時間使得污泥中的有機物與污泥分離,然后污泥中的有機物炭化;
(4)污泥燃燒步驟:將步驟(3)所得污泥以及污泥制得的炭輸送至鍋爐進料口出的進料裝置處,根據熱基值計算燃燒步驟(3)所得污泥以及污泥制得的炭需添加的煤炭的量,然后將煤炭加入鍋爐的第二進料裝置處,所述進料裝置與第二進料裝置分別連接鏈式輸送帶與第二鏈式輸送帶,并且鏈式輸送帶位于第二鏈式輸送帶上方;控制進料的比例與速度保證鍋爐連續充分燃燒,鍋爐內溫度超過950℃。
9.根據權利要求8所述的污泥處置工藝,其特征在于,還包括尾氣處理步驟:高溫鍋爐廢氣進入氣體換熱裝置后將熱量傳遞給進入氣體換熱裝置的常溫空氣,降溫后的鍋爐廢氣繼續進入炭化污泥的烘干裝置,然后進入鍋爐廢氣凈化系統;升溫后的空氣先后進入污泥炭化裝置、污泥干燥裝置然后成為干化廢氣,比較后進入干化廢氣凈化系統。
污泥是在污水處理過程中產生的半固態或固態物質。污水處理廠生產過程中產生的污泥(污水變泥水,經絮凝泥再脫水而得的泥餅)中含水率高達70%~90%。污水處理廠每處理1萬噸污水要產生污泥6-10噸。污泥是水中污染物,如不能將其徹底處理,污染會一直存在。因此,污泥處理是實現污水處理的必要步驟。污泥形狀為灰黑色,水泡體,其中含大量的蛋白質有機物、各種菌種病原體。污泥長期擱置會導致腐爛發臭,產生甲烷、硫化氫等毒氣,并且滋生細菌、蚊蠅,傳播疾病,危害生命。工業污泥中還含重金屬、化學品,污染水土,危害環境。
國內外早期污泥處置均以堆放為主,將污泥傾倒入橡膠地、菜地、綠化地、山坡地里。該方法漠視污染隱患,嚴重威脅環境質量。后來污泥的處理由地上堆存轉為地下填埋,由于地下填埋需要的占地面積大,又發展其他污泥處理方法,如焚燒等等。填埋污泥曾是國內污水處理廠處理污泥的過程方法,大多數廠家曾以填埋的方式處理污泥。污泥填埋場地多選在該地區的田洼地、水源區,住戶稀少,自然生態較好的地方。填埋污泥后,污泥填埋場地來人逐漸稀少。然而,隨著人們活動范圍的擴大,填埋污泥發出的臭毒氣、蚊蠅多等造成的臟亂差環境使人不快,引發污泥填埋場地周邊居民向政府投訴環境污染問題。因此,經濟較發達地區,政府高度重視并已著手研究處理污泥填埋場問題。
填埋污泥的處理目前存在以下方法:
1)焚燒:焚燒污泥是負能量,副作用很大。焚燒污泥一般是由各個地方的電廠來完成的。主要是因為電廠煙囪高,污染稀釋,不易引起周邊居民反感情緒。但是由于污泥的腐蝕性強,導致電廠設備損失大,折舊迅速。同時,因焚燒工藝過程中產生嚴重的二次污染,其中比較為人知的就是二噁英危害,天長日久,容易導致基因變異,給該地區的居民生命健康帶來永久性災難。另一方面,電廠每焚燒1噸污泥,煙道里要產生186公斤左右的煙灰,無活性,不可利用,其中的二噁英、重金屬如果超標,即為危險廢物,需要耗費大量的衛生填埋費用(1200-2000元/噸);
2)干化燃燒:干化污泥熱值有3000大卡/千克,與煤炭混合可燃燒,燃燒正能量,不產生二噁英。由于爐渣有活性,資源化利用處置,可徹底處理了污泥。經調查了解,現有的干化成本427元/噸,不包括設備折舊;干化設備價格單項50萬元/噸,300噸/天污泥干化項目報價1.75億元人民幣。如果沒有電廠,干化后的污泥沒有解決途徑,不能獨自生存。如果電廠焚燒收費,預計費用可達260-480元/噸,合計處理費用高達687-907元/噸污泥,普通企業難以承擔。
例如:專利號為200510038416.3的中國發明公開了一種污泥焚燒處理方法,該方法是將含水率為75%~85%的脫水污泥輸送至循環流化床的燃燒室中,將脫水污泥在貯藏過程中產生的污染氣體送入循環流化床的燃燒室中,脫水污泥、污染氣體與煤一起焚燒,焚燒產生的尾氣經處理后排放。該系統具有循環流化床鍋爐、除塵器和污泥貯藏室,利用螺桿泵將脫水污泥經污泥輸送管和污泥噴射頭噴射至循環流化床的燃燒室中焚燒,利用風機將污泥產生的污染氣體送至燃燒室中焚燒;該系統還可以具有蒸汽吹掃裝置和高壓水清洗裝置,以不定時清洗螺桿泵、污泥輸送管和污泥噴射頭,防止其被脫水污泥堵塞。
專利號為200810197041.9的中國發明公開了一種電廠鍋爐用輔助燃料的干污泥的生產方法和工藝設備,包括以下步驟:(1)將污泥與SAA污泥干成劑按重量比90~99∶10~1加入空心槳葉均混設備中均混,污泥與SAA污泥干成劑的總量為100%,并對污泥進行解凝、斷鏈、造粒、造隙;(2)將第(1)步均混的污泥加入多能源干化污泥設備內,將太陽能、電能和蒸汽能源通過熱傳導設施進行復合施加在待干化的污泥上對污泥進行干燥,得電廠鍋爐用輔助燃料的干污泥。將本發明制得的電廠鍋爐用輔助燃料的干污泥與燃煤電廠的鍋爐用煤按重量比8~15∶92~85進行混磨得混合燃料噴入鍋爐加熱設備進行燃燒生產過熱蒸汽,干污泥與燃煤電廠的鍋爐用煤的總量為100%。
專利號為200910015938.X的中國發明公開了一種城市污泥無害化資源化處置工藝,利用電廠現有的煤粉鍋爐、輸煤、尾氣排放處理系統進行城市污泥處置。本發明從電廠煤粉鍋爐的空氣預熱器前部抽取的煙氣與從電廠鍋爐除塵器后部抽取的煙氣混合為140~180℃煙氣送至污泥干燥機,對污泥進行干化,干化后的污泥進入電廠輸煤系統混入燃煤入爐焚燒發電,實現污泥資源化利用。燃煤與干污泥在鍋爐內燃燒,排放的煙氣進入電廠鍋爐除塵器及濕法脫硫系統處理,干化后煙氣及干污泥儲存、輸送過程產生的尾氣排至電廠脫硫系統處理,實現污染物達標排放,杜絕了對環境的二次污染。
專利號為201210479041.4的中國發明公開了一種污泥生物質燃料的制造方法,以有機質含水污泥及生物質原料進行混合,經過發酵、脫水,從而制造出一種新的污泥生物質燃料。所得污泥生物質燃料可以替代天然煤,其卡值在1500-5000大卡,其產品易燃燒,且排放低于歐盟排放標準,經過燃燒后的灰燼中富含鈣、鎂、磷、鉀、鈉等元素,是上好的熱性速效有機肥料。
專利號為201210566895.6的中國發明公開了一種城市污泥潔凈燃料化系統及污泥燃料化方法,系統包括:濃縮池、污泥測試機構,污泥測試機構與機械擠壓干燥機構或混合反應器相連;機械擠壓干燥機構分別連接燃燒鍋爐和氣體處置設備,混合反應器連接燃燒鍋爐;燃燒鍋爐分別連接氣體處置設備、城市供熱系統和污泥粉煤灰處置設備,污泥粉煤灰處置設備連接污泥粉煤灰測試系統;氣體處置設備與冷凝裝置相連,冷凝裝置依次連接脫氮、脫硫和除氨裝置,除氨裝置分別連接氨水儲罐和燃燒鍋爐。方法包括:污泥濃縮處理、性能測試、擠壓或混合得到污泥型煤或污泥水煤漿,于燃燒鍋爐燃燒后的污泥粉煤灰制備低分子絮凝劑或用于建材,氣體經處置后回用。
發明內容
本發明的目的是提供一種污泥處置系統及處置工藝。
為了實現上述發明目的,本發明采用的技術方案為:一種污泥處置系統,其特征在于,所述污泥處置系統包括:污泥進料裝置,污泥干燥裝置,污泥炭化制炭裝置,污泥燃燒裝置以及尾氣處理裝置。
上述技術方案中,所述污泥進料裝置包括:至少一地埋式料倉,至少一無軸螺旋輸送機;所述地埋式料倉為設有料倉閥門的斗式料倉,并且至少部分所述斗式料倉埋設于地下;所述地埋式料倉的下部開口設有料倉閥門,下部開口處對應設置一無軸螺旋輸送機。
上述技術方案中,所述污泥干燥裝置為槳葉式攪拌機;所述槳葉式攪拌機為雙槳葉空心攪拌機,所述攪拌機兩端設有導熱軟管,導熱軟管分別與干燥機殼體夾套和槳葉軸內腔相互連通;所述槳葉式攪拌機設有污泥熱解區和污泥干燥區;所述污泥干燥裝置的上部還設有熱尾氣的入口和出口。
上述技術方案中,污泥炭化裝置為雙槳葉空心攪拌機,所述槳葉式攪拌機設有驅動電機,齒輪減速機構,兩根軸分別為主動葉片軸和從動葉片軸,所述軸設有空心內腔;所述驅動電機通過齒輪減速機構驅動兩根軸,兩根軸上各自設有若干槳葉,所述槳葉式攪拌機外殼設有導熱油入口和導熱油出口的,其中所述外殼殼體為空心的夾套;所述污泥炭化裝置的上部還設有熱尾氣的入口和出口。
上述技術方案中,所述燃燒裝置為鍋爐,所述鍋爐設有一炭化污泥的上料口和一煤炭的上料口;所述鍋爐燃燒室內設有一上輸送鏈,一下輸送鏈,所述上輸送鏈位于所述下輸送鏈上方;所述上輸送鏈的一端設置所述煤炭的上料口,另一端設置爐渣出口;所述下輸送鏈的一端設置所述炭化污泥的上料口,另一端設置爐渣出口;所述上輸送鏈和下輸送鏈的傳送速度可以單獨調節。
上述技術方案中,所述尾氣處理裝置包括熱量回收裝置,一尾氣凈化裝置;所述熱量回收裝置包括一氣體換熱裝置,換熱裝置設有鍋爐廢氣入口、鍋爐廢氣出口,空氣入口,空氣出口;高溫鍋爐廢氣進入氣體換熱裝置后將熱量傳遞給進入氣體換熱裝置的常溫空氣,降溫后的鍋爐廢氣繼續進入炭化污泥的烘干裝置,然后進入鍋爐廢氣凈化系統;升溫后的空氣先后進入污泥炭化裝置、污泥干燥裝置然后成為干化廢氣,比較后進入干化廢氣凈化系統。
上述技術方案中,所述污泥進料裝置,污泥干燥裝置,污泥燃燒裝置以及尾氣處理裝置都設置在一負壓廠房中,廠房設有一雙層自動門。
本發明同時要求保護一種污泥處置工藝,包括以下步驟:
(1)卸料與上料步驟:將污泥卸載在地埋式料倉中,打開料倉閥門,使污泥落入與地埋式料倉相配合的無軸螺旋輸送機中;無軸螺旋輸送機將污泥輸送至污泥干燥裝置中;
(2)污泥干燥步驟:控制雙槳葉空心攪拌機中的加熱介質的流速、流量與溫度,將雙槳葉空心攪拌機加熱到100~240℃,控制雙槳葉空心攪拌機的攪拌推進速度,使污泥在雙槳葉空心攪拌機中依次經歷熱解過程與干燥過程,干燥至進入攪拌機的初始體積的30%到40%時即可進入污泥炭化制炭裝置;
(3)污泥炭化制炭步驟:控制雙槳葉空心攪拌機中的夾層中加熱介質的流速、流量與溫度,同時控制進入雙槳葉空心攪拌機中的尾氣流量,調整雙槳葉空心攪拌機中的溫度在220~260℃,調整雙槳葉空心攪拌機中的攪拌推進裝置的轉速,保證污泥的停留時間使得污泥中的有機物與污泥分離,然后污泥中的有機物炭化;
(4)污泥燃燒步驟:將步驟(3)所得污泥以及污泥制得的炭輸送至鍋爐進料口出的進料裝置處,根據熱基值計算燃燒步驟(3)所得污泥以及污泥制得的炭需添加的煤炭的量,然后將煤炭加入鍋爐的第二進料裝置處,所述進料裝置與第二進料裝置分別連接鏈式輸送帶與第二鏈式輸送帶,并且鏈式輸送帶位于第二鏈式輸送帶上方;控制進料的比例與速度保證鍋爐連續充分燃燒,鍋爐內溫度超過950℃。
上述技術方案中,所述的污泥處置工藝,還包括尾氣處理步驟:高溫鍋爐廢氣進入氣體換熱裝置后將熱量傳遞給進入氣體換熱裝置的常溫空氣,降溫后的鍋爐廢氣繼續進入炭化污泥的烘干裝置,然后進入鍋爐廢氣凈化系統;升溫后的空氣先后進入污泥炭化裝置、污泥干燥裝置然后成為干化廢氣,比較后進入干化廢氣凈化系統。

污水處理設備聯系方式:
銷售熱線:010-8022-5898
手機號碼:186-1009-4262





