今天為大家介紹的是——家庭智能無廢水凈水機
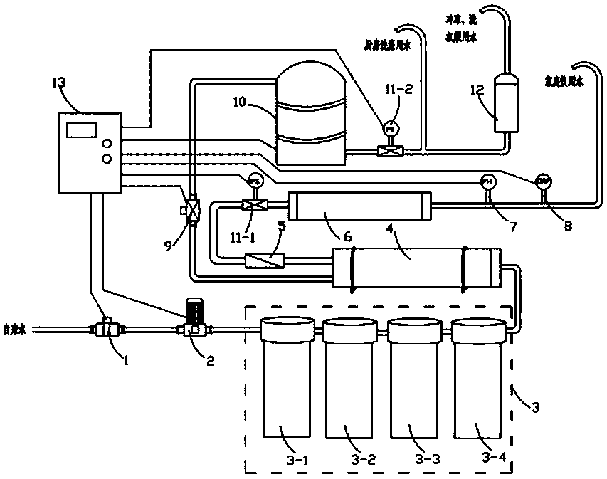
家庭智能無廢水凈水機,包括:進水電磁閥、增壓泵、前過濾裝置、RO反滲透過濾器、壓力桶、第二高壓開關、軟水器以及控制器;所述前過濾裝置設置在RO反滲透過濾器的前端,所述前過濾裝置中設置有一級過濾器和超濾器;所述超濾器的出水口與所述RO反滲透過濾器的進水口連接;所述RO反滲透過濾器的濃縮水出水口設置有節水閥,所述節水閥的出水口與所述壓力桶、所述第二高壓開關和所述軟水器的進水口依次連通;所述控制器與所述進水電磁閥、所述增壓泵、所述節水閥、所述壓力桶和所述第二高壓開關相連接。本實用新型實現了對自來水凈化后對濃水回收利用的智能控制,達到無廢水排放的目的。
摘要附圖

權利要求書
1.種家庭智能無廢水凈水機,其特征在于,包括:
進水電磁閥(1)、增壓泵(2)、前過濾裝置(3)、RO反滲透過濾器(4)、壓力桶(10)、第二高壓開關(11-2)、軟水器(12)以及控制器(13);
所述進水電磁閥(1)的出水口與所述增壓泵(2)的進水口連接,所述增壓泵(2)的出水口與所述前過濾裝置(3)的進水口連接;
所述前過濾裝置(3)的出水口與所述RO反滲透過濾器(4)的進水口連接;
所述RO反滲透過濾器(4)的濃縮水出水口設置有節水閥(9),所述節水閥(9)的出水口與所述壓力桶(10)、所述第二高壓開關(11-2)和所述軟水器(12)的進水口依次連通;
所述控制器(13)分別與所述進水電磁閥(1)、所述增壓泵(2)、所述節水閥(9)、所述壓力桶(10)和所述第二高壓開關(11-2)相連接。
2.根據權利要求1所述的家庭智能無廢水凈水機,其特征在于,所述家庭智能無廢水凈水機還包括:止逆閥(5)、多功能復合過濾器(6)、PH測量儀(7)、ORP測量儀(8)和高壓開關(11-1);
所述止逆閥(5)的進水口與所述RO反滲透過濾器(4)的純水出口連接,所述止逆閥(5)的出水口與所述高壓開關(11-1)、所述多功能復合過濾器(6)、所述PH測量儀(7)和所述ORP測量儀(8)的進水口依次連通。
3.根據權利要求2所述的家庭智能無廢水凈水機,其特征在于,所述控制器(13)還與所述高壓開關(11-1)、所述PH測量儀(7)和所述ORP測量儀(8)相連接。
4.根據權利要求1所述的家庭智能無廢水凈水機,其特征在于,所述前過濾裝置(3)設置有一級過濾器(3-1)、超濾器(3-4)、二級過濾器(3-2)和三級過濾器(3-3);
所述一級過濾器(3-1)的進水口為所述前過濾裝置(3)的進水口,所述一級過濾器(3-1)的出水口與二級過濾器(3-2)的進水口,所述二級過濾器(3-2)的出水口與所述三級過濾器(3-3)的進水口連接,所述三級過濾器(3-3)的出水口與所述超濾器(3-4)的進水口連接,所述所述超濾器(3-4)的出水口為所述前過濾裝置(3)的出水口。
5.根據權利要求1所述的家庭智能無廢水凈水機,其特征在于,所述RO反滲透過濾器(4)的純水出口設置在所述RO反滲透過濾器(4)的濃縮水出水口的上方。
說明書
一種家庭智能無廢水凈水機
技術領域
本實用新型涉及過濾飲水機技術領域,特別涉及一種家庭智能無廢水凈水機。
背景技術
隨著現代工業的發展,環境污染日趨嚴重,“喝水”問題逐漸引起人們的關注。市政自來水輸送過程中產生的二次污染問題使生活飲用水水質處理器成為人們研究的重點,其中具有代表性的是反滲透技術。然而比較近卻頻現《自動售水機——廢水機》、《凈水器也是“廢水機”》的報道,這是因為反滲透膜對自來水進行深度處理產生可直接飲用的凈水的同時,會產生一部分“濃水”,這部分濃水占原水的 70%左右,即生產1噸凈水,可產生 2~3噸的濃水,也就是說,經過一 次提純過濾后,產生的濃水是凈水的3倍左右。
以往的逆滲透膜凈水機都是濃水排放型,即將一次提純過濾后的濃水當作廢水直接排放掉,這的確是一種很大的浪費,特別是小型的家用、商用凈水機,其原水是自來水,經過一次凈化過濾產生的濃水的水質并非比原水差,還有利用的價值,還可以進一步被二次、三次深度提純,若將濃水當作廢水直接排放,不僅會增加凈水成本,而且對水資源來說也是一種浪費。
發明內容
本實用新型的目的在于提供一種家庭智能無廢水凈水機,其通過家庭智能無廢水凈水機實現對自來水凈化后對濃水回收利用的智能控制,達到無廢水排放的目的。
為實現上述目的,本實用新型提供了一種家庭智能無廢水凈水機,包括:進水電磁閥、增壓泵、前過濾裝置、RO反滲透過濾器、壓力桶、第二高壓開關、軟水器以及控制器;所述進水電磁閥的出水口與所述增壓泵的進水口連接,所述增壓泵2的出水口與所述前過濾裝置的進水口連接;所述前過濾裝置的出水口與所述RO反滲透過濾器的進水口連接;所述RO反滲透過濾器的濃縮水出水口設置有節水閥,所述節水閥的出水口與所述壓力桶、所述第二高壓開關和所述軟水器的進水口依次連通;所述控制器分別與所述進水電磁閥、所述增壓泵、所述節水閥、所述壓力桶和所述第二高壓開關相連接。
優選地,上述技術方案中,所述家庭智能無廢水凈水機還包括:止逆閥、多功能復合過濾器、PH測量儀、ORP測量儀和高壓開關;
所述止逆閥的進水口與所述RO反滲透過濾器的純水出口連接,所述止逆閥的出水口與所述高壓開關、所述多功能復合過濾器、所述PH測量儀和所述ORP測量儀的進水口依次連通。
優選地,上述技術方案中,所述控制器還與所述高壓開關、所述PH測量儀和所述ORP測量儀相連接。
優選地,上述技術方案中,所述前過濾裝置設置有一級過濾器、超濾器、二級過濾器和三級過濾器;
所述一級過濾器的進水口為所述前過濾裝置的進水口,所述一級過濾器的出水口與二級過濾器的進水口,所述二級過濾器的出水口與所述三級過濾器3-3的進水口連接,所述三級過濾器的出水口與所述超濾器的進水口連接,所述所述超濾器的出水口為所述前過濾裝置的出水口。
優選地,上述技術方案中,所述RO反滲透過濾器的純水出口設置在所述RO反滲透過濾器的濃縮水出水口的上方。
與現有技術相比,本實用新型具有如下有益效果:
1. 本實用新型中的家庭智能無廢水凈水機在不增加反滲膜透過濾負荷和能耗的前提下,將反滲透過濾產生的濃水直接送至壓力桶存儲以用于生活用水使用,凈水機無廢水排放,而且濃水和自來水以及前純水不混合,保障了水質。
2. 在凈水機中設置控制器,控制器與進水電磁閥、增壓泵、節水閥、壓力桶、止逆閥、PH測量儀、ORP測量儀、高壓開關和和第二高壓開關連接并自動控制它們調節凈水機的工作狀態,同時可以設定測量值,在用戶不需要飲水時,自動停止工作,凈水機不再制水,這不僅節約了水資源,也節約了電能,經濟環保。

污水處理設備聯系方式:
銷售熱線:010-8022-5898
手機號碼:186-1009-4262





